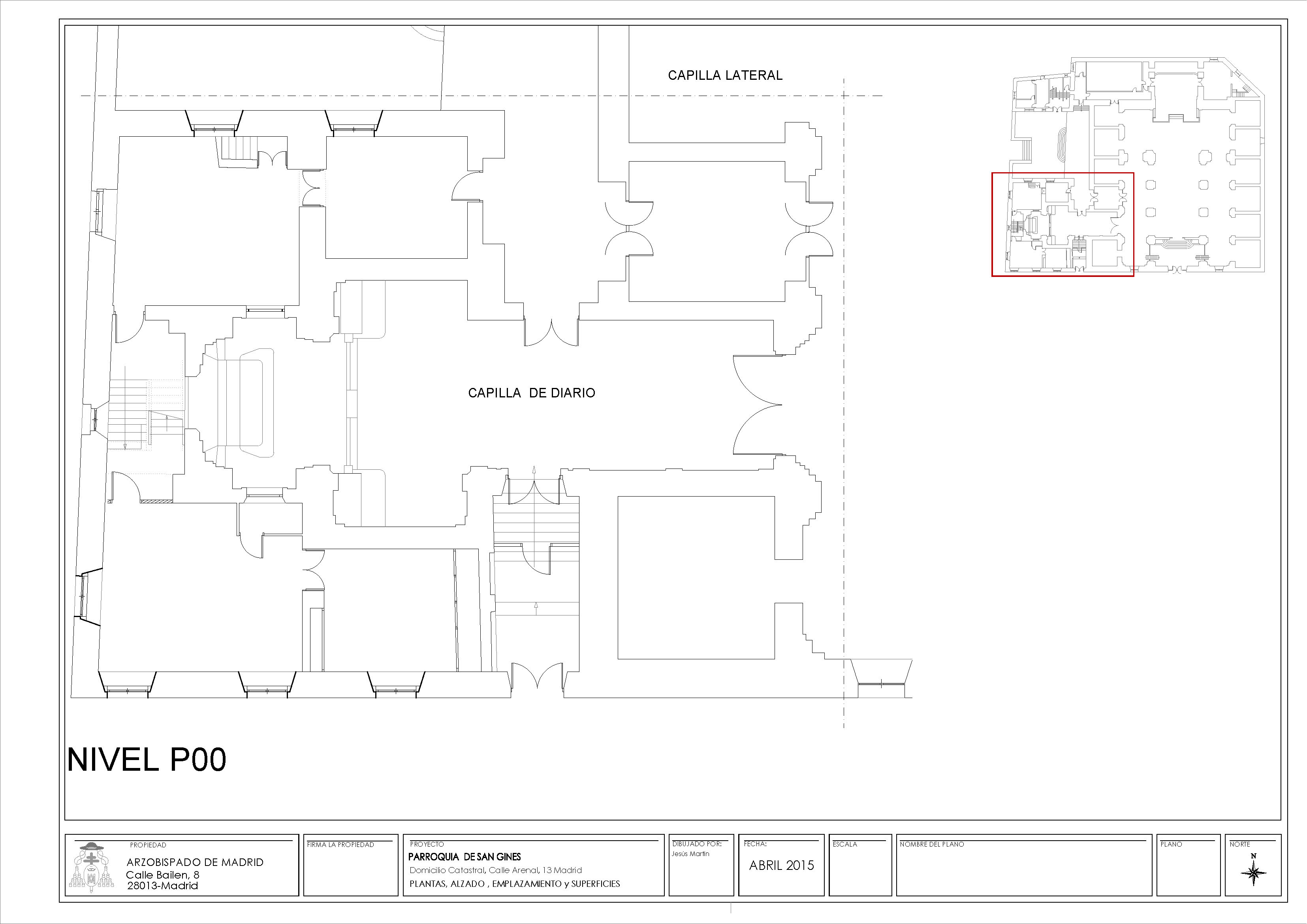
Levantamiento de las distintas plantas del complejo parroquia de San Ginés en Madrid.

Volver