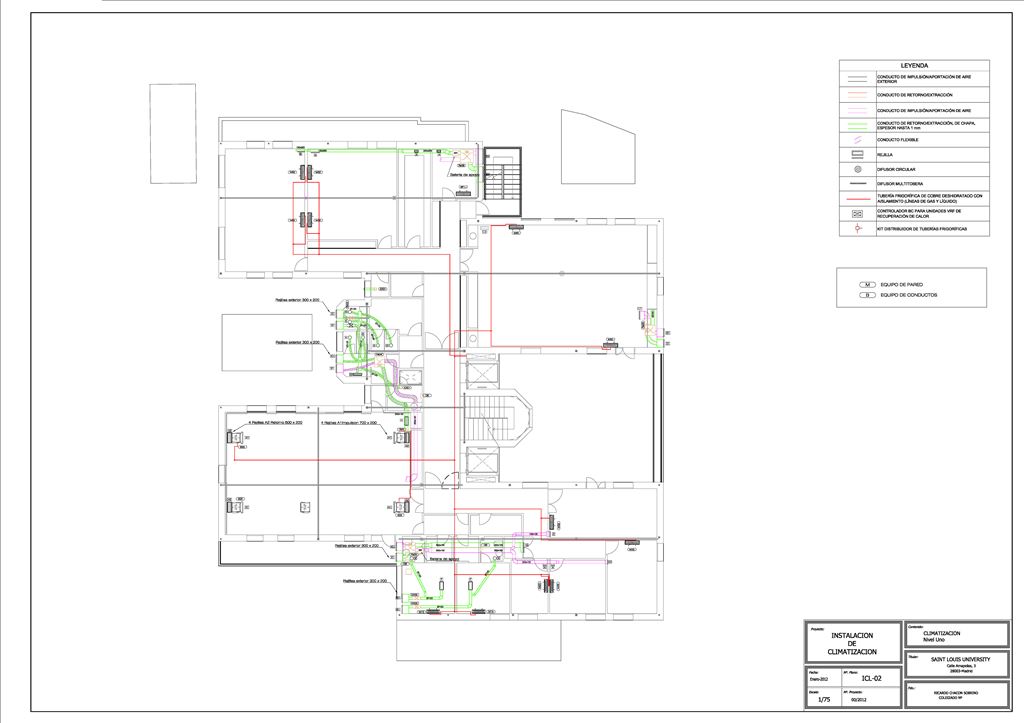
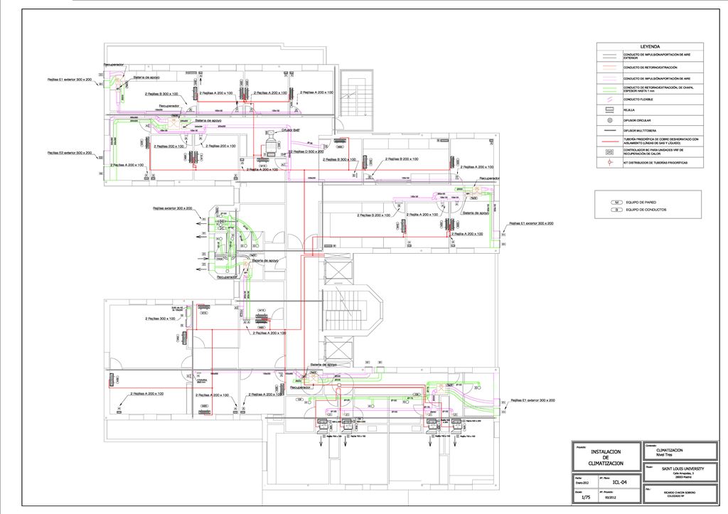
Proyecto de climatización del Colegio Saint Louise University

Volver