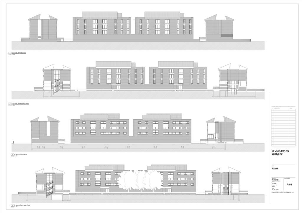
Desarroyo del Anteproyecto de 42 viviendas en altura ubicadas en Aranjuez.
Planos de Planta, Alzados y Secciones
Desarroyo del Anteproyecto de 42 viviendas en altura ubicadas en Aranjuez.
Planos de Planta, Alzados y Secciones